Sign up to get new listings emailed daily! JOIN SIGN IN
Annette Mullen, DRE#00935034, REALTOR®
(805) 440-6620

0 Cornucopia, Tulare, CA 93221

$1,349,900
  • 0 Cornucopia, Tulare, CA 93221 Main Photo

4 Total Photos [Click to View All]

Active
LOT SIZE 1.080 acres MLS#PI25249591
STATUSActive PROPERTY TYPELand - Residential

Listing Courtesy of: Independent Broker Network
Agency Phone: 559-972-2131
Associate Name: Robyn Icenhower
IDX logo


Listing Shown by: Farrell Smyth, Inc.
Associate Name: Annette Mullen, DRE#00935034, REALTOR®


Property Description

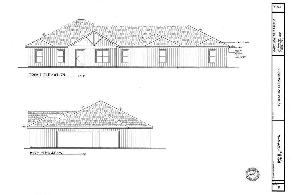
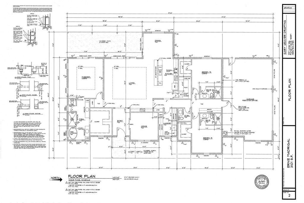
Construction is set to begin soon on this thoughtfully designed custom residence by Madrigal Prime Properties. Set on just over an acre with breathtaking foothill views, this 3,101 sq. ft. home blends modern comfort with timeless design. The spacious floor plan features 3 bedrooms, 3.5 bathrooms, and a private office, all centered around an open-concept living area that connects the kitchen, dining, and great room with ease. Enjoy seamless indoor-outdoor living with a covered patio and a future pool designed for entertaining or relaxing. Additional highlights include 10-ft ceilings, an indoor laundry room, and a finished garage. Construction beginning soon! Reach out for more details.

0 Cornucopia | MLS# PI25249591

This land located at 0 Cornucopia, Tulare, CA 93221 is currently listed for sale with an asking price of $1,349,900. The property has approximately 1.08 Acres. Search Tulare real estate on annettemullen.farrellsmyth.com today.

Property Features

Property Type: Land - Residential
Lot Size: 1.08 Acres

Feature Descriptions

Community Features: Rural
Days on Site: 127
Lot: 0-1 Unit/Acre, Rectangular Lot
Parcel#: 133160052000
Sewer: Private Sewer
Water: Private

Listed By / Shown By

Listed By

Agency Name: Independent Broker Network
Agency Phone: 559-972-2131
Agent Name: Robyn Icenhower

agent picture

Shown By

Agent Name: Annette Mullen, DRE#00935034, REALTOR®
Agent Phone: (805) 440-6620
Agency Title: Farrell Smyth, Inc.

IDX logo

Estimate Your Payment

Estimated Payment

$ 3,398.01 per month $3,004.29 Principal & Interest $0.00 Property Tax (data not provided by mls) $393.72 Homeowner's Insurance

Change Payment Information

%
years/fixed
yearly
yearly (est.)
(Payments are an estimate and may vary by lender)
Disclaimer: All information deemed reliable but not guaranteed. All properties are subject to prior sale, change or withdrawal. Neither listing broker(s) or information provider(s) shall be responsible for any typographical errors, misinformation, misprints and shall be held totally harmless. Listing(s) information is provided for consumers personal, non-commercial use and may not be used for any purpose other than to identify prospective properties consumers may be interested in purchasing. Information on this site was last updated 03/06/2026. The listing information on this page last changed on 03/06/2026. The data relating to real estate for sale on this website comes in part from the Internet Data Exchange program of Delta Media Group MLS (last updated Fri 03/06/2026 12:51:04 AM EST) or CRMLS (last updated Fri 03/06/2026 12:28:32 AM EST). Real estate listings held by brokerage firms other than Farrell Smyth, Inc. may be marked with the Internet Data Exchange logo and detailed information about those properties will include the name of the listing broker(s) when required by the MLS. All rights reserved.
Privacy Policy / DMCA Notice / ADA Accessibility

Login to My Homefinder

Pixel