Sign up to get new listings emailed daily! JOIN SIGN IN
Annette Mullen, DRE#00935034, REALTOR®
(805) 440-6620
Refine Search

1045 N Kings Road, Unit 107, West Hollywood, CA 90069

$739,000
  • 1045 N Kings Road, Unit 107, West Hollywood, CA 90069 Main Photo

25 Total Photos [Click to View All]

New to the Market Active
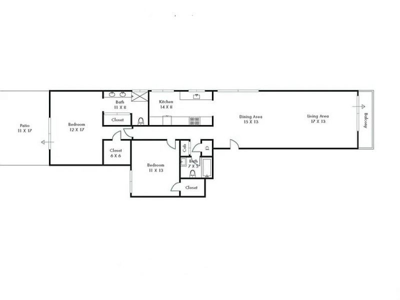
BEDS2 BATHS2 full SQUARE FEET1,223 MLS#BB26034059
STATUSActive PROPERTY TYPEResidential - Condominium SCHOOLLos Angeles Unified

Listing Courtesy of: Keller Williams Realty
Agency Phone: 323-300-1000
Associate Name: Steven Hill
IDX logo


Listing Shown by: Farrell Smyth, Inc.
Associate Name: Annette Mullen, DRE#00935034, REALTOR®


Property Description

Tucked away in a quiet rear corner and elevated above the street, this stylishly reimagined condo offers an exceptional blend of modern comfort and everyday convenience. The spacious living and dining areas feature pristine Vintage White Oak hardwood flooring, recessed lighting with smart Wi-Fi dimmers, and sliding glass doors that open to a private balcony ? an ideal spot to enjoy the surrounding greenery and peaceful setting. The remodeled kitchen is a true showpiece, complete with sleek Caesarstone countertops, a custom backsplash, newer appliances including a stainless steel Bosch dishwasher, and a charming breakfast nook perfect for casual mornings. The expansive primary suite offers a walk-in closet, an additional closet for extra storage, and sliding doors leading to a second private patio for relaxed outdoor lounging. The en-suite bath has been beautifully updated with dual vessel sinks, a tiled shower, and a chic sliding shadow-glass door for added privacy. A generously sized second bedroom also features a walk-in closet, while the fully renovated guest bath showcases modern finishes throughout. Additional upgrades include an August Wi-Fi smart lock, a new electrical panel, and a newer HVAC system (installed in 2015) controlled by a Nest smart thermostat. The building itself underwent a full interior remodel in 2018, adding to the homes overall appeal and efficiency. Ideally located across from Gelsons, around the corner from Barrys Bootcamp, and less than a mile from the best dining, shopping, and nightlife West Hollywood has to offer, this condo delivers the perfect balance of location, style, and convenience.

1045 N Kings Road, Unit 107 | MLS# BB26034059

This condo located at 1045 N Kings Road, Unit 107, West Hollywood, CA 90069 is currently listed for sale with an asking price of $739,000. This property was built in 1968 and has 2 bedrooms and 2 full baths with 1223 sq. ft. N Kings Road, Unit 107 is located within the Los Angeles Unified school district. Search West Hollywood real estate on annettemullen.farrellsmyth.com today.

Property Features

Property Type: Residential - Condominium
Cooling: CentralAir
Garage: 1
Heating: Central
Home Style: Contemporary
Lot Size: 0.46 Acres
Roof Type: RolledHotMop
Stories: 1.0
Year Built: 1968

Amenities

Balcony
BreakfastArea
PrimarySuite

Feature Descriptions

Appliances: Dishwasher, ElectricRange, Microwave, Refrigerator
Association Amenities: ControlledAccess, MaintenanceGrounds, Pool, SpaHotTub
Community Features: StreetLights, Sidewalks, Pool
Days on Site: 1
Door Features: SlidingDoors
Exterior: Stucco
Fencing: Wood, WroughtIron
Fireplace: None
Flooring: Tile, Wood
HOA Fee: 775/ Monthly
Laundry: CommonArea
Lot: ZeroToOneUnitAcre
Parcel#: 5529001043
Parking: Assigned, CommunityStructure
Parking Notes: Assigned, CommunityStructure
Patio/Porch: Open, Patio
Pool: Community, Association
Security: CarbonMonoxideDetectors, KeyCardEntry
Sewer: PublicSewer
Spa: Community
Spa: Yes
Swimming Pool: Yes
Units: 30
Water: Public

Local Schools

School District: Los Angeles Unified

Listed By / Shown By

Listed By

Agency Name: Keller Williams Realty
Agency Phone: 323-300-1000
Agent Name: Steven Hill

agent picture

Shown By

Agent Name: Annette Mullen, DRE#00935034, REALTOR®
Agent Phone: (805) 440-6620
Agency Title: Farrell Smyth, Inc.

IDX logo

Estimate Your Payment

Estimated Payment

$ 1,860.24 per month $1,644.69 Principal & Interest $0.00 Property Tax (data not provided by mls) $215.54 Homeowner's Insurance

Change Payment Information

%
years/fixed
yearly
yearly (est.)
(Payments are an estimate and may vary by lender)
Disclaimer: All information deemed reliable but not guaranteed. All properties are subject to prior sale, change or withdrawal. Neither listing broker(s) or information provider(s) shall be responsible for any typographical errors, misinformation, misprints and shall be held totally harmless. Listing(s) information is provided for consumers personal, non-commercial use and may not be used for any purpose other than to identify prospective properties consumers may be interested in purchasing. Information on this site was last updated 03/05/2026. The listing information on this page last changed on 03/05/2026. The data relating to real estate for sale on this website comes in part from the Internet Data Exchange program of Delta Media Group MLS (last updated Thu 03/05/2026 12:07:19 AM EST) or CRMLS (last updated Thu 03/05/2026 12:02:21 AM EST). Real estate listings held by brokerage firms other than Farrell Smyth, Inc. may be marked with the Internet Data Exchange logo and detailed information about those properties will include the name of the listing broker(s) when required by the MLS. All rights reserved.
Privacy Policy / DMCA Notice / ADA Accessibility

Login to My Homefinder

Pixel