Sign up to get new listings emailed daily! JOIN SIGN IN
Annette Mullen, DRE#00935034, REALTOR®
(805) 440-6620

1176 N Main, Lakeport, CA 95453

$325,000
  • 1176 N Main, Lakeport, CA 95453 Main Photo

10 Total Photos [Click to View All]

Active
MLS#LC26030255
STATUSActive PROPERTY TYPECommercial - Business

Listing Courtesy of: RE/MAX Gold Lake County
Agency Phone: 707-262-5700
Associate Name: Laura Hall
IDX logo


Listing Shown by: Farrell Smyth, Inc.
Associate Name: Annette Mullen, DRE#00935034, REALTOR®


Property Description

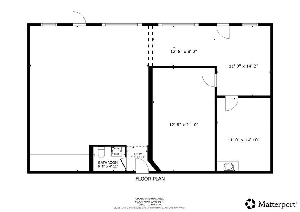
Prime Corner Commercial Building ? 1,440 SF in Downtown Lakeport Excellent opportunity to own a highly visible 1,440 square foot commercial building located at 1176 N. Main Street in the heart of Lakeport. Situated on a prominent corner lot with convenient off-street parking, this versatile property offers outstanding exposure . Just one block from historic downtown Lakeport and the beautiful lakefront parks of Clear Lake, this location benefits from steady pedestrian and vehicle traffic, surrounded by popular restaurants, shops, and local businesses. The flexible layout is ideal for a variety of uses including retail, professional office, boutique, salon, bakery, wellness studio, or fitness space. Property Features: 1,440 square feet commercial building Prime corner location Off-street parking Excellent visibility and signage potential Walkable downtown location Close proximity to restaurants, shops, and lakefront parks Flexible use potential Rare opportunity to secure a prime commercial location in one of Lake Countys most desirable downtown areas.

1176 N Main | MLS# LC26030255

This commercial property located at 1176 N Main, Lakeport, CA 95453 is currently listed for sale with an asking price of $325,000. Search Lakeport real estate on annettemullen.farrellsmyth.com today.

Property Features

Property Type: Commercial - Business
Cooling: Ductless
Heating: Ductless
Lot Size: 0.13 Acres
Roof Type: Flat
Stories: 1.0
Year Built: 1961

Feature Descriptions

Community Features: Park
Days on Site: 13
Exterior: Block
Fencing: Partial
Laundry: None
Lot: Corner Lot, Level, Near Park, Near Public Transit, Walkstreet
Parcel#: 026282030000
Utilities: Electricity Connected, Sewer Connected, Water Connected
Water: Public

Listed By / Shown By

Listed By

Agency Name: RE/MAX Gold Lake County
Agency Phone: 707-262-5700
Agent Name: Laura Hall

agent picture

Shown By

Agent Name: Annette Mullen, DRE#00935034, REALTOR®
Agent Phone: (805) 440-6620
Agency Title: Farrell Smyth, Inc.

IDX logo

Disclaimer: All information deemed reliable but not guaranteed. All properties are subject to prior sale, change or withdrawal. Neither listing broker(s) or information provider(s) shall be responsible for any typographical errors, misinformation, misprints and shall be held totally harmless. Listing(s) information is provided for consumers personal, non-commercial use and may not be used for any purpose other than to identify prospective properties consumers may be interested in purchasing. Information on this site was last updated 03/05/2026. The listing information on this page last changed on 03/05/2026. The data relating to real estate for sale on this website comes in part from the Internet Data Exchange program of Delta Media Group MLS (last updated Thu 03/05/2026 12:07:19 AM EST) or CRMLS (last updated Thu 03/05/2026 12:02:21 AM EST). Real estate listings held by brokerage firms other than Farrell Smyth, Inc. may be marked with the Internet Data Exchange logo and detailed information about those properties will include the name of the listing broker(s) when required by the MLS. All rights reserved.
Privacy Policy / DMCA Notice / ADA Accessibility

Login to My Homefinder

Pixel