Sign up to get new listings emailed daily! JOIN SIGN IN
Annette Mullen, DRE#00935034, REALTOR®
(805) 440-6620

2809 2809 Arjan Court, San Pablo, CA 94806

$699,990
  • 2809 2809 Arjan Court, San Pablo, CA 94806 Main Photo

3 Total Photos [Click to View All]

Active
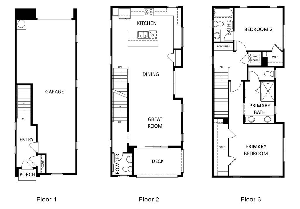
BEDS2 BATHS2 full 1 partial SQUARE FEET1,618 MLS#41119690
STATUSActive PROPERTY TYPEResidential - Single Family SUBDIVISIONSAN PABLO PROP SCHOOLWest Contra Costa

Listing Courtesy of: The Advantage Group
Agency Phone: 916-348-9000
Associate Name: Kevin Coates
IDX logo


Listing Shown by: Farrell Smyth, Inc.
Associate Name: Annette Mullen, DRE#00935034, REALTOR®


Property Description

Welcome to Chattleton Place, a stunning new community of three-story single-family luxury homes in the vibrant San Pablo/Richmond area. Perfectly situated just minutes from major freeways and BART, these homes provide effortless access to San Francisco, Berkeley, Oakland, and Napa, making them ideal for commuters and urban explorers. Enjoy the convenience of nearby shopping at El Cerrito Plaza and a quick 10-minute drive to Solano Avenue in Albany, where youll find a lively mix of restaurants, hiking trails, and transportation options. These exquisite Spanish Revival-style homes range from 1,600 to 2,100 square feet, offering 2-bed/2.5-bath layouts for singles, couples, and small families, and 3-bed/3.5-bath options for larger households. Select homes even feature Accessory Dwelling Units (ADUs), perfect for rental income or multi-generational living. With owned solar panels, airy great rooms, gracious porches, and modern amenities like pantries, walk-in closets, spa-like bathrooms, and home offices, these residences redefine comfort and style. Whether youre a first-time buyer or looking to upgrade, Chattleton Place delivers East Bay living with the wow factor built in.

2809 2809 Arjan Court | MLS# 41119690

This single family home located at 2809 2809 Arjan Court, San Pablo, CA 94806 is currently listed for sale with an asking price of $699,990. This property was built in 2026 and has 2 bedrooms and 2 full and 1 partial baths with 1618 sq. ft. 2809 Arjan Court is located in the SAN PABLO PROP subdivision within the West Contra Costa school district. Search SAN PABLO PROP real estate on annettemullen.farrellsmyth.com today.

Property Features

Property Type: Residential - Single Family
Cooling: Central Air
Garage: 2 car attached
Heating: Electric
Home Style: Spanish
Lot Size: 0.04 Acres
Roof Type: Tile
Stories: 3.0
Year Built: 2026

Amenities

Breakfast Bar

Feature Descriptions

Appliances: Electric Water Heater
Association Amenities: Other
Days on Site: 66
Exterior: Stucco, Wood Siding
Fireplace: None
Flooring: Carpet, Laminate
HOA Fee: 198/ Monthly
Lot: Street Level
Parking: Garage, Garage Door Opener
Parking Notes: Garage, Garage Door Opener
Patio/Porch: Deck
Sewer: Public Sewer

Local Schools

School District: West Contra Costa

Listed By / Shown By

Listed By

Agency Name: The Advantage Group
Agency Phone: 916-348-9000
Agent Name: Kevin Coates

agent picture

Shown By

Agent Name: Annette Mullen, DRE#00935034, REALTOR®
Agent Phone: (805) 440-6620
Agency Title: Farrell Smyth, Inc.

IDX logo

Estimate Your Payment

Estimated Payment

$ 1,762.04 per month $1,557.87 Principal & Interest $0.00 Property Tax (data not provided by mls) $204.16 Homeowner's Insurance

Change Payment Information

%
years/fixed
yearly
yearly (est.)
(Payments are an estimate and may vary by lender)
Disclaimer: All information deemed reliable but not guaranteed. All properties are subject to prior sale, change or withdrawal. Neither listing broker(s) or information provider(s) shall be responsible for any typographical errors, misinformation, misprints and shall be held totally harmless. Listing(s) information is provided for consumers personal, non-commercial use and may not be used for any purpose other than to identify prospective properties consumers may be interested in purchasing. Information on this site was last updated 03/06/2026. The listing information on this page last changed on 03/06/2026. The data relating to real estate for sale on this website comes in part from the Internet Data Exchange program of Delta Media Group MLS (last updated Fri 03/06/2026 12:51:04 AM EST) or CRMLS (last updated Fri 03/06/2026 12:28:32 AM EST). Real estate listings held by brokerage firms other than Farrell Smyth, Inc. may be marked with the Internet Data Exchange logo and detailed information about those properties will include the name of the listing broker(s) when required by the MLS. All rights reserved.
Privacy Policy / DMCA Notice / ADA Accessibility

Login to My Homefinder

Pixel